Logo Vakantiehuisjes.nl Logo Vakantiehuisjes.nl
  • Actueel & betrouwbaar
  • Direct boeken
  • Lage prijzen

282294

|
Bekijk op kaart
282294
282294
282294
+ 19 foto's
282294
€108,41 v.a. prijs per nacht

De laagste prijsgarantie!

Heb je een vraag over dit vakantiehuis?

Neem contact met ons op

  • Afwasmachine
  • Tuin
  • Wasmachine
  • Wifi
  • Vriezer
  • Barbecue
  • Oven / magnetron
  • Douche
Alle voorzieningen

Omschrijving

Vakantiehuis in Damp met zwembad

TOP Ausstattung, Strandnähe, ruhig gelegen am Kurwald, großer Garten, WLAN 100.000 kbit/s , 84 qm bis 5 Pers., Badelandschaft, PKW-Stellplatz am Haus, Kamin, 2 x TV in HD

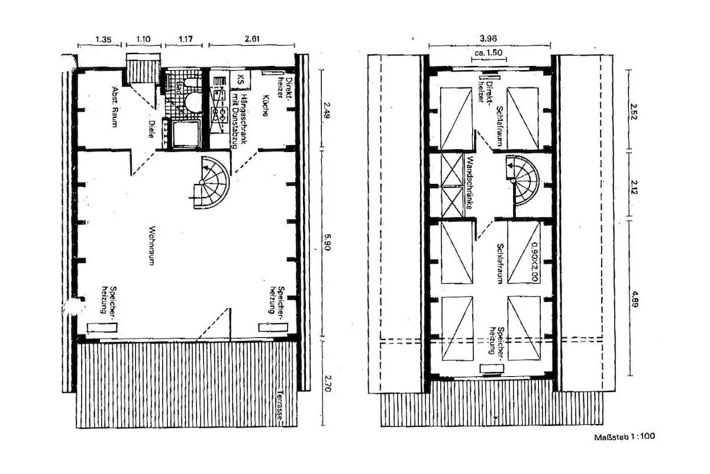
Das 84 qm große Nichtraucher-/ Nurdachhaus (größer als viele andere Zelt-Nurdachhäuser in Damp) in sehr ruhiger Lage direkt am Kurwald (Gartentor zum 20m entfernten Kurwald vorhanden) im Ostsee Resort Damp bietet mit 550 qm auch im Garten alle Freiheiten. Hier stehen Ihnen Sonnenliegen, dazugehörige Gartenmöbel, eine überdachte Terrasse sowie eine zweite angelegte Terrasse im Garten mit Grill und Sonnenschirm zur Verfügung. Ein Strandkorb lädt zum Entspannen ein. Eine Sandkiste, Rutsche, Bobbycar und Dreirad fehlen ebenfalls nicht für die kleinen Racker. Das Gartenhaus mit einem Fahrrad für das tägliche Brötchen holen und Bollerwagen für die Strandbesuche ermöglicht Ihnen auch den Unterstand Ihrer Fahrräder.

Die komfortable Ausstattung bietet 5 Personen einen nahezu wunschlosen Urlaub. Ein eigener Parkplatz direkt vor der Haustür erleichtert von Beginn an den Urlaub.
Ein HDTV 40 Zoll Flachbildschirm (FULL-HD/ Sat-Anschluss) inkl. DVD-Player und Blu-Ray-Player im Erdgeschoß sowie Stereoanlage inkl. Docking-Station und USB-Anschluß 'runden' das helle Wohnzimmer ab. Das Ferienhaus hat einen kostenfreien WLAN-Anschluss mit 100.000 kbit/s!

Neben der technischen Unterhaltung bietet das Haus eine gemütliche Essecke und ein 3er und 2er Leder-Sofa, Sessel und Hocker. Das Wohnzimmer wird abgerundet durch den stilvollen Kaminofen mit Büchern und Spielen zum Entspannen. Holz können Sie im nah gelegenen Edeka-Markt beziehen. Im Erdgeschoss ist neben einem Flur, ein Bad mit WC und Dusche sowie einer voll ausgestatteten Küche mit Kühlschrank. Hier finden Sie Gefrierfach, Geschirrspüler, Waschmaschine, Backofen, Herd inkl. Ceranfeld, Mikrowelle, Toaster, Wasserkocher, Mixer, Filter-Kaffeemaschine sowie Kaffee-Padmaschine, Waffeleisen, Indoor-Grill usw.

Es stehen Ihnen zudem ein Kinderhochstuhl und Baby-Reisebett zur Verfügung.

Im Obergeschoss befinden sich Schlafräume, die beide mit Fliegengittern ausgestattet sind, für 2 und für 3 Personen (ein Babybett kann auf Anfrage aufgestellt werden). Alle Matratzen sind mit Schonern versehen. 2 Matratzen mit Härtegrad 2,5 (= hart bis mittel) und die anderen entsprechen Härtegrad 1,5 (= weich bis mittel). Das Schlafzimmer '2' ist zusätzlich mit einem HD-TV Flachbildschirm ausgerüstet. Im sehr großen 2. Schlafraum finden Sie eine Spiel-Ecke für die Kinder; bestückt mit Spielen und Büchern für alle Altersklassen.

Das gesamte Haus ist mit wischbaren Fußböden ausgelegt und dadurch sehr pflegeleicht. Es befinden sich zusätzlich Teppichläufer im Haus. Das Haus ist komplett mit Rauchmeldern ausgestattet und Steckdosen mit nachgerüsteten Kindersicherungen versehen.
Sie dürfen bis zu 2 Hunde gegen Gebühr mitbringen. Das Grundstück ist größtenteils eingezäunt. Zusätzlich steht ein mobiler 25 m Hundezaun zur Verfügung.

Das Ferienhaus wird durch Öko-Strom betrieben und liegt direkt am Damper Kurwald (15 m), der Ihnen Wald-Spaziergänge und Jogging-/ Nordic Walking-Ausflüge ermöglicht. Der nah gelegene Ostsee-Sandstrand ist (ca. 900 m) zu Fuß in 10 Minuten über den anliegenden Deich einfach zu erreichen und ist in der Sommersaison DLRG überwacht.

Im verkehrsberuhigtem Ort Damp finden Sie alle Annehmlichkeiten für Ihren Urlaub, die Sie direkt zu Fuß erreichen können, wie z.B. Bowling-und Kegel-Center, Fun- und Sport-Center inkl. Kletterturm, Inliner-Bahn, Kinder-Betreuung, Indoor-Beach-Volleyball, Squash, Tennis-Plätze sowie Kinderspielplatz, Mini-Golf, Wasser-Ski-Anlage, Surf-und Segel-Schule, Abenteuer-Golf, Fahrrad-Verleih, Promenade / Einkaufsmeile, Restaurants, Krankenhaus, Yachthafen, Schifffahrt, DLRG-Strand, Hunde-Strand, FKK-Strand, Vital-Center inkl. Sauna, Wellness-Center und Schwimmbad und Fitness-Center und vieles, vieles mehr...wie einem nah gelegenen Reiterhof in ca. 1,5 km Entfernung.

Das neue Damper Entdeckerbad für Kinder und Erwachsene eröffnet. Neben einem Kleinkinderbadeland finden Sie ein großes Schwimmbecken in abstrahierter Form der Ostsee und eine Eventrutsche sowie Außenschwimmbad und Saunalandschaften, welches in unter 5 Minuten zu Fuß zu erreichen ist!

Einige Höhepunkte des neuen Entdeckerbades:
- 97 Meter Eventrutsche mit Lichtprojektion und LED-Effekten
- 67 Meter lange Speedrutsche/ Neu seit Winter 2016/2017
- Sauna-Wikingerdorf mit Event-, Aufguss- und Kräutersaunen
- Dreidimensionales, laserprojiziertes Polarlicht von der Hallendecke
- Erlebnis-Kinderbecken zum Experimentieren und Erforschen
- 29-30 °C Innenbecken in abstrahierter Form der Ostsee
- 34 °C Außenbecken
- Erlebnisgastronomie für Bad- und Saunabesucher
- Traumhafter Ausblick auf die 'echte' Ostsee
- Entdecker-, Science- und Eventcubes

- zahlreiche Exponate

Das Konzept des neuen Bades ist weit über die Grenzen Schleswig-Holsteins hinaus einzigartig. Es thematisiert Nordeuropa, nordische Kulturen und die Wikinger. Die gesamte Familie geht hier mit einer ausgewogenen Mischung aus Unterhaltung und spielerischem Lernen auf Erkundungsreise. Für kleine und große Gäste gibt es in drei Ergebnisräumen vieles zu erleben und zu entdecken: Es gibt ein Kino, einen Bereich mit naturwissenschaftlichen Experimenten zum Ausprobieren sowie Touchscreens-Quiz und -Spiele zur Ostsee und Wikingerzeit.

Schauen Sie gerne auf die Internetseiten www.entdeckerbad.de und www.ostsee-resort-damp.de und entdecken noch viel mehr vom Entdeckerbad und dem Ostseebad Damp!

Lassen Sie sich zudem von der wunderschönen Ostsee-Halbinsel Schwansen zu erholsamen Spaziergängen und Radtouren verleiten. Ausflüge in die nah gelegenen Küsten- bzw. Fischerstädten nach Kappeln (u.a. Drehort Landarzt, Museums-Dampfeisenbahn,....) und Eckernförde (15-20 km) laden zum Bummeln ein.

Die nahe gelegenen Orte Maasholm (wunderschönes kleines Fischerdorf), Arnis (kleinste Stadt in Deutschland) und der Vergnügungspark Tolk (Tolk-Schau) sowie Schleswig/ Haithabu (Wikinger Museum) sind weitere in der Umgebung befindliche Ausflugsziele.

Für begeisterte Angler bietet die nahe gelegene Ostsee für Fliegen-Fischen und Brandungsangeln Top-Bedingungen. Gerne geben wir Ihnen Tipps für die besten Buchten vom Fachmann. Durch den Molen-Bereich (außerhalb des Schwimmbereiches!!) ist Damp ein beliebter Spot/ Ort für Wellenreiter und Kite-Surfer.

Weitere Ausflugsziele finden Sie in unseren Prospekten vor Ort wie auch in unserer Informationsmappe über das Haus. Unser Ferienhaus steht am Anreisetag ab 16.00 Uhr zur Verfügung und muss am Abreisetag bis 10.00 Uhr mit Abgabe der Schlüssel übergeben werden.

Belangrijke informatie
Populaire filters Wifi
Type vakantiehuisje Vakantiehuis
Over het vakantiehuisje
  • Gelegen inDamp
  • Aankomst vanaf 14:00 tot 16:00
  • Vertrektijd 10:00

Voorzieningen

Dit maakt jouw verblijf onvergetelijk

Faciliteiten
Mindervaliden
  • Brede toegang
Voorzieningen
  • Afwasmachine
  • Barbecue
  • Douche
  • Koelkast
  • Openhaard
  • Oven / magnetron
  • Tuin
  • Tv
  • Vriezer
  • Wasmachine
  • Wifi

Op de kaart

Alle informatie die je nodig hebt voor de juiste beslissing!

Het weer
Weather Icon 9°C Plaatselijke regen in de omgeving
Minimaal 7°C
Maximaal 10°C
Komende dagen
  • di. 12 11°/5° 100%
  • wo. 13 11°/6° 100%
  • do. 14 11°/5° 100%
  • vr. 15 12°/6° 100%
  • za. 16 13°/6° 0%

Het klimaat in Schweineweide

Het weer het gehele jaar

Maand Temperatuur (°C) Luchtvochtigheid (%) Neerslagsom (mm)
Januari /-1° 85% 60 mm
Februari /-1° 81% 45 mm
Maart /1° 78% 45 mm
April 12°/3° 74% 35 mm
Mei 17°/7° 72% 45 mm
Juni 20°/10° 73% 60 mm
Juli 22°/13° 75% 75 mm
Augustus 22°/13° 76% 75 mm
September 18°/10° 79% 60 mm
Oktober 13°/7° 82% 60 mm
November /3° 86% 60 mm
December /0° 86% 60 mm

Veelgestelde vragen

Antwoorden op de meest gestelde vragen over deze accommodatie

Mag ik mijn huisdieren meenemen naar 282294?
Ja, je mag 1 huisdieren meenemen naar 282294
Is er wifi beschikbaar bij 282294?
Ja, deze accommodatie beschikt over wifi en wifi.
Is er airco aanwezig bij 282294?
Nee, deze er is op deze accommodatie geen airco aanwezig.
Wat zijn de in- en uitchecktijden voor 282294?
Inchecken kan vanaf 14:00 en uitchecken tot 10:00.
Heeft 282294 een bad?
Nee, 282294 heeft geen bad.
Kan ik mijn auto parkeren bij 282294?
Nee, het is niet mogelijk om je auto op het terrein van de accommodatie te parkeren.
Kan ik zwemmen bij 282294?
Nee, er zijn geen zwemfaciliteiten 282294 aanwezig.

Andere accommodaties in de buurt

Misschien vind je dit ook leuk

Direct te boeken
Baltic Village Damp - Comforthaus 2 Pers
Baltic Village Damp - Comforthaus 2 Pers
Wifi Vakantiehuis Oven / magnetron Sauna
Direct te boeken
Baltic Village Damp - Comforthaus 4 Pers
Baltic Village Damp - Comforthaus 4 Pers
Wifi Vakantiehuis Oven / magnetron Sauna
Direct te boeken
Baltic Village Damp - Comforthaus 3 Pers
Baltic Village Damp - Comforthaus 3 Pers
Wifi Vakantiehuis Oven / magnetron Sauna
Direct te boeken
Baltic Village Damp - Premiumhaus 2 Pers
Baltic Village Damp - Premiumhaus 2 Pers
Wifi Vakantiehuis Oven / magnetron Sauna
Direct te boeken
Baltic Village Damp - Premiumhaus 3 Pers
Direct te boeken
Baltic Village Damp - VIP Haus 2Pers
Baltic Village Damp - VIP Haus 2Pers
Wifi Vakantiehuis Oven / magnetron Bubbelbad / Hot tub
Direct te boeken
Baltic Village Damp - VIP Haus 3 Pers
Baltic Village Damp - VIP Haus 3 Pers
Wifi Vrijstaand Oven / magnetron Bubbelbad / Hot tub
Direct te boeken
Baltic Village Damp - Comforthaus XXL 8 Pers 2x Comforthaus nebeneinander
Plaatsen in de buurt
282294

Duitsland - Sleeswijk-Holstein - Damp

Fotoboek
Filteren:
badkamers
282294 - Niet-getagd
282294 - Niet-getagd
282294 - Niet-getagd
282294 - Niet-getagd
282294 - Niet-getagd
282294 - Niet-getagd
282294 - Niet-getagd
282294 - Niet-getagd
282294 - Niet-getagd
282294 - Niet-getagd
282294 - Niet-getagd
282294 - Niet-getagd
282294 - Niet-getagd
282294 - Niet-getagd
282294 - Niet-getagd
282294 - Niet-getagd
282294 - Niet-getagd
282294 - Niet-getagd
282294 - Niet-getagd
282294 - Niet-getagd
282294 - Niet-getagd
282294 - Niet-getagd
1/ 22