Logo Vakantiehuisjes.nl Logo Vakantiehuisjes.nl
  • Actueel & betrouwbaar
  • Direct boeken
  • Lage prijzen

3 room

|
Bekijk op kaart
3 room
3 room
3 room
+ 58 foto's
3 room
€113,03 v.a. prijs per nacht

De laagste prijsgarantie!

Heb je een vraag over dit vakantiehuis?

Neem contact met ons op

  • Wifi
  • Koelkast
  • Op een vakantiepark
  • Vakantiehuis
  • Wasmachine
  • Verwarming
  • Bad
  • Sauna
Alle voorzieningen

Omschrijving

4 persoons vakantie huis op een vakantie park in Rømø

Stilvolle Inneneinrichtung, exklusiver Wellnessbereich, nobles Restaurant: Hier können Sie sich rundum verwöhnen! View movie on YouTube. Danland Rømø Resort Lassen Sie sich verwöhnen! Im Rømø Resort ist alles perfekt arrangiert, um Ihren Familienurlaub mit Wellness und Golf zu kombinieren. Und das auf einer der schönsten Inseln Dänemarks: der Nordseeinsel Rømø mit ihren breiten Sandstränden und dem unvergleichlichen Wattenmeer. Übrigens: Rømø ist kostenfrei über eine Brücke erreichbar. Gratis Zugang zur größen Wellness-Oase Dänemarks. Auf 2.600 m² können Sie sich in unzähligen Saunen, Dampfbädern, Therapiebecken und Massagebädern verwöhnen lassen. Ein echtes Highlight sind die indianischen Outdoor-Schwitzkästen. Auch Kinder haben zu ausgewählten Zeiten Zutritt zum Wellnessbereich, so dass Sie gemeinsam mit ihrer Familie relaxen können. Ein Besuch im Fitnessbereich rundet Ihren Wellnessurlaub ab. Außerdem erwartet Sie im Badeland ein großer Pool für jede Menge spritzigen Wasserspaß. Badeland und Wellness: Finnische Sauna Bio-Sauna Whirlpool Aroma-Dampfbäder Kurbäder Kaltwasserbecken Salzwasserbecken Fußmassagekanäle Wassermassage Massagebad Wasserfall Tropenregen Wärme Therapiebäder Wärmeliegen Indianische Outdoor-Schwitzkästen Outdoor-Whirlpool Outdoor-Atriumgarten Zugang zu Welness nur für Personen ab 14 Jahren. Ein Paradies für Kinder. Hier kommt garantiert keine Langeweile auf! Verschiedene Swimmingpools, Hüpfkissen, Spielplätze, Bowling, ein riesiger Indoor-Spielraum lassen Kinderaugen strahlen. Die Dünen, der Strand und das Wattenmeer sind ein Geheimtipp für kleine Entdecker! Golf: Auf zum Abschlag! Hügelige Greens mit perfekt angelegten Seen und einer fantastischen Aussicht auf die Dünen und das Meer zeichnen die Golfplätze aus. Sie haben die Wahl zwischen mehreren Golfplätzen, bei denen Sie auch ohne Mitgliedschaft gegen Gebühr Golf spielen können. Sie haben noch keine Erfahrung mit Golf? Dann können Sie vor Ort Einzel- und Gruppenunterricht buchen. Eine schönere Umgebung für Ihren Start in den Golfsport werden Sie kaum finden! Ferienwohnungen: Sie wohnen in eleganten, hellen Ferienwohnungen mit Kamin und gratis Internetanschluss. Die Wohnungen wurden erst 2006 erbaut und sind nur 2 km vom Badestrand entfernt. Wählen Sie aus den verschiedenen Ferienhäusern (Typ 1,2,4) Ihre ideale Unterkunft. pro Haustier (Anmeldung erforderlich): 275 DKK/Aufenthalt

Belangrijke informatie
Populaire filters Op een vakantiepark
Type vakantiehuisje Vakantiehuis
Over het vakantiehuisje
  • Gelegen inHavneby
  • Aankomst vanaf 00:00 tot 00:00
  • Vertrektijd 00:00

Voorzieningen

Dit maakt jouw verblijf onvergetelijk

Faciliteiten
Voorzieningen
  • Afwasmachine
  • Bad
  • Koelkast
  • Tv
  • Verwarming
  • Wasmachine
  • Wifi
Verblijf
Wellness
  • Bubbelbad / Hot tub
  • Sauna

Op de kaart

Alle informatie die je nodig hebt voor de juiste beslissing!

Het weer
Weather Icon 15°C Zonnig
Minimaal 12°C
Maximaal 15°C
Komende dagen
  • di. 26 13°/11° 0%
  • wo. 27 11°/10° 0%
  • do. 28 13°/10° 0%
  • vr. 29 14°/11° 0%
  • za. 30 14°/13° 0%

Het klimaat in Sønderby

Het weer het gehele jaar

Maand Temperatuur (°C) Luchtvochtigheid (%) Neerslagsom (mm)
Januari /0° 86% 60 mm
Februari /0° 84% 40 mm
Maart /1° 81% 45 mm
April 10°/3° 77% 35 mm
Mei 15°/7° 76% 45 mm
Juni 18°/10° 77% 60 mm
Juli 20°/13° 79% 70 mm
Augustus 20°/13° 80% 75 mm
September 17°/10° 81% 70 mm
Oktober 13°/7° 84% 75 mm
November /3° 86% 70 mm
December /1° 87% 65 mm

Veelgestelde vragen

Antwoorden op de meest gestelde vragen over deze accommodatie

Mag ik mijn huisdieren meenemen naar 3 room?
Nee, het is niet toegestaan om huisdieren mee te nemen naar 3 room
Is er wifi beschikbaar bij 3 room?
Ja, deze accommodatie beschikt over wifi en wifi.
Is er airco aanwezig bij 3 room?
Nee, deze er is op deze accommodatie geen airco aanwezig.
Wat zijn de in- en uitchecktijden voor 3 room?
Inchecken kan vanaf 00:00 en uitchecken tot 00:00.
Heeft 3 room een bad?
Ja, 3 room beschikt over een bad.
Kan ik mijn auto parkeren bij 3 room?
Nee, het is niet mogelijk om je auto op het terrein van de accommodatie te parkeren.
Kan ik zwemmen bij 3 room?
Ja, 3 room beschikt over een zwembad.

Andere accommodaties in de buurt

Misschien vind je dit ook leuk

Direct te boeken
RIM FERIECENTER
RIM FERIECENTER
Wifi Afwasmachine Vakantiehuis Oven / magnetron
Direct te boeken
RIM FERIECENTER
RIM FERIECENTER
Wifi Afwasmachine Vakantiehuis Oven / magnetron
Direct te boeken
RIM FERIECENTER
RIM FERIECENTER
Wifi Afwasmachine Vakantiehuis Oven / magnetron
Direct te boeken
"Gaida" - 2.3km from the sea
"Gaida" - 2.3km from the sea
Wasmachine Vriezer Tv Verwarming
Direct te boeken
"Mariam" - 2.3km from the sea
"Mariam" - 2.3km from the sea
Wasmachine Vriezer Tv Parkeerplaats
Direct te boeken
"Nayana" - 2.3km from the sea
"Nayana" - 2.3km from the sea
Wasmachine Vriezer Tv Verwarming
Direct te boeken
4 sterren vakantie huis in Rømø-By Traum
Direct te boeken
Golfuitzicht retraite -- By Traum Ferienwohnungen
Plaatsen in de buurt
3 room

Denemarken - Zuid-Denemarken - Havneby

Fotoboek
Filteren:
badkamers
3 room - Buitenlucht
3 room - Buitenlucht
3 room - Buitenlucht
3 room - Buitenlucht
3 room - Buitenlucht
3 room - Buitenlucht
3 room - Buitenlucht
3 room - Buitenlucht
3 room - Buitenlucht
3 room - Buitenlucht
3 room - Niet-getagd
3 room - Niet-getagd
3 room - Niet-getagd
3 room - Niet-getagd
3 room - Niet-getagd
3 room - Niet-getagd
3 room - Niet-getagd
3 room - Waterzicht
3 room - Waterzicht
3 room - Zwembad
3 room - Zwembad
3 room - Zwembad
3 room - Zwembad
3 room - Zwembad
3 room - Zwembad
3 room - Zwembad
3 room - Zwembad
3 room - Zwembad
3 room - Zwembad
3 room - Spa
3 room - Spa
3 room - Spa
3 room - Binnen
3 room - Binnen
3 room - Binnen
3 room - Binnen
3 room - Binnen
3 room - Binnen
3 room - Binnen
3 room - Binnen
3 room - Binnen
3 room - Binnen
3 room - Binnen
3 room - Binnen
3 room - Binnen
3 room - Binnen
3 room - Niet-getagd
3 room - Niet-getagd
3 room - Niet-getagd
3 room - Uitzicht
3 room - Uitzicht
3 room - Uitzicht
3 room - Uitzicht
3 room - Uitzicht
3 room - Uitzicht
3 room - Uitzicht
3 room - Uitzicht
3 room - Uitzicht
3 room - Uitzicht
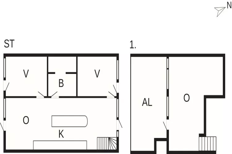
3 room - Plattegrond
3 room - Plattegrond
1/ 61