Logo Vakantiehuisjes.nl Logo Vakantiehuisjes.nl
  • Actueel & betrouwbaar
  • Direct boeken
  • Lage prijzen

Résidence Bellevue

|
Bekijk op kaart
Résidence Bellevue
Résidence Bellevue
Résidence Bellevue
+ 12 foto's
Résidence Bellevue
€86,86 v.a. prijs per nacht

De laagste prijsgarantie!

Heb je een vraag over dit vakantiehuis?

Neem contact met ons op

  • Afwasmachine
  • Wasmachine
  • Verwarming
  • Tv
  • Appartement
  • Appartementencomplex
  • Aan de skipiste
Alle voorzieningen

Omschrijving

Appartement in Les Saisies met uitzicht op de bergen

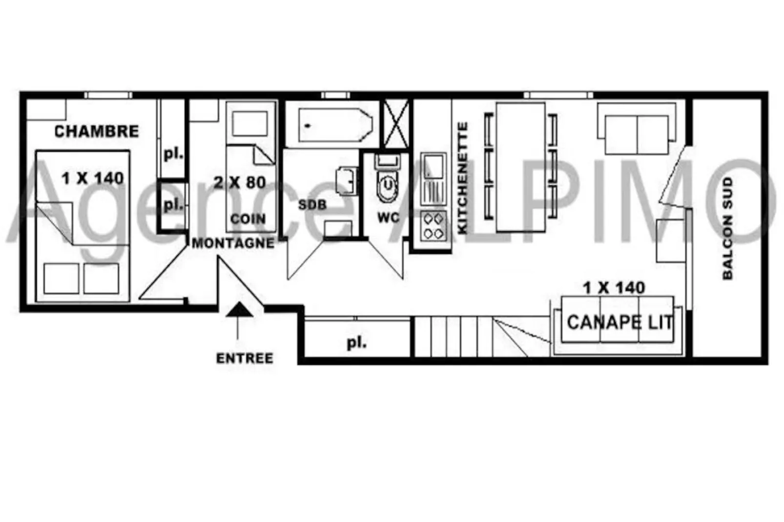
Deze charmante residentie, gelegen op de top van het pittoreske resort Les Saisies, biedt een serene alpenontsnapping met een adembenemend uitzicht op Mont Bisanne en het majestueuze Beaufortain-gebergte. Stelt u zich eens voor dat u wakker wordt met de gouden tinten van de ochtendzon die door uw balkon op het zuiden schijnt, waar het panorama van ruige bergtoppen en rustige valleien de toon zet voor een dag vol avontuur of ontspanning. Deze knusse retraite is perfect voor wie op zoek is naar een mix van comfort en natuurschoon in het hart van de Franse Alpen. \n\nHet zorgvuldig ontworpen tweekamerappartement biedt plaats aan maximaal zes gasten, waardoor het ideaal is voor gezinnen of kleine groepen. De woonkamer is voorzien van een comfortabele tweepersoonsslaapbank, terwijl de slaapkamer een knus tweepersoonsbed biedt voor een goede nachtrust. Een berghoek met twee stapelbedden voegt een vleugje alpencharme toe, hoewel het bovenste stapelbed gereserveerd is voor oudere kinderen of volwassenen. De kitchenette is volledig uitgerust voor het bereiden van stevige maaltijden en de badkamer met een apart toilet zorgt voor gemak voor iedereen. Geclassificeerd als een 2-sterren toeristische accommodatie en bekroond met de prestigieuze \

Belangrijke informatie
Type vakantiehuisje Appartement
Over het vakantiehuisje
  • Gelegen inHauteluce
  • Aankomst vanaf 15:00 tot 20:00
  • Vertrektijd 10:00

Voorzieningen

Dit maakt jouw verblijf onvergetelijk

Faciliteiten
Voorzieningen
  • Afwasmachine
  • Koelkast
  • Oven / magnetron
  • Tv
  • Verwarming
  • Wasmachine

Op de kaart

Alle informatie die je nodig hebt voor de juiste beslissing!

Het weer
Weather Icon 16°C Onweersbuien in de omgeving
Minimaal 3°C
Maximaal 16°C
Komende dagen
  • za. 02 17°/7° 100%
  • zo. 03 16°/5° 100%
  • ma. 04 11°/6° 100%
  • di. 05 13°/1° 100%
  • wo. 06 /-3° 100%

Het klimaat in Les Saisies

Het weer het gehele jaar

Maand Temperatuur (°C) Luchtvochtigheid (%) Neerslagsom (mm)
Januari /-5° 77% 80 mm
Februari /-4° 73% 70 mm
Maart /-2° 71% 75 mm
April 12°/1° 68% 80 mm
Mei 17°/5° 68% 110 mm
Juni 21°/8° 65% 110 mm
Juli 24°/10° 63% 80 mm
Augustus 24°/10° 62% 90 mm
September 19°/7° 67% 90 mm
Oktober 14°/3° 71% 100 mm
November /-1° 76% 95 mm
December /-4° 78% 90 mm

Veelgestelde vragen

Antwoorden op de meest gestelde vragen over deze accommodatie

Mag ik mijn huisdieren meenemen naar Résidence Bellevue?
Nee, het is niet toegestaan om huisdieren mee te nemen naar Résidence Bellevue
Is er wifi beschikbaar bij Résidence Bellevue?
Nee, er is geen aanwezig op deze accommodatie.
Is er airco aanwezig bij Résidence Bellevue?
Nee, deze er is op deze accommodatie geen airco aanwezig.
Wat zijn de in- en uitchecktijden voor Résidence Bellevue?
Inchecken kan vanaf 15:00 en uitchecken tot 10:00.
Heeft Résidence Bellevue een bad?
Nee, Résidence Bellevue heeft geen bad.
Kan ik mijn auto parkeren bij Résidence Bellevue?
Nee, het is niet mogelijk om je auto op het terrein van de accommodatie te parkeren.
Kan ik zwemmen bij Résidence Bellevue?
Nee, er zijn geen zwemfaciliteiten Résidence Bellevue aanwezig.

Andere accommodaties in de buurt

Misschien vind je dit ook leuk

Direct te boeken
Résidence Byblos
Résidence Byblos
Oven / magnetron Tv Appartement Appartementencomplex
Direct te boeken
Résidence Byblos
Résidence Byblos
Oven / magnetron Tv Appartement Appartementencomplex
Direct te boeken
Résidence Grand Mont Bat 4
Résidence Grand Mont Bat 4
Oven / magnetron Tv Appartement Appartementencomplex
Direct te boeken
Chalet Des Cimes Batiment G
Chalet Des Cimes Batiment G
Koelkast Oven / magnetron Tv Parkeerplaats
Direct te boeken
Résidence Isabella A
Résidence Isabella A
Oven / magnetron Tv Appartement Appartementencomplex
Direct te boeken
Résidence Ecrin
Résidence Ecrin
Koelkast Oven / magnetron Tv Appartement
Direct te boeken
Résidence Isabella C
Résidence Isabella C
Oven / magnetron Tv Appartement Appartementencomplex
Direct te boeken
Résidence Isabella C
Résidence Isabella C
Oven / magnetron Tv Appartement Appartementencomplex
Plaatsen in de buurt
Résidence Bellevue

Frankrijk - Auvergne-Rhône-Alpes - Savoie - Hauteluce

Fotoboek
Filteren:
badkamers
Résidence Bellevue - Niet-getagd
Résidence Bellevue - Niet-getagd
Résidence Bellevue - Niet-getagd
Résidence Bellevue - Niet-getagd
Résidence Bellevue - Niet-getagd
Résidence Bellevue - Niet-getagd
Résidence Bellevue - Niet-getagd
Résidence Bellevue - Niet-getagd
Résidence Bellevue - Niet-getagd
Résidence Bellevue - Niet-getagd
Résidence Bellevue - Niet-getagd
Résidence Bellevue - Niet-getagd
Résidence Bellevue - Niet-getagd
Résidence Bellevue - Niet-getagd
Résidence Bellevue - Niet-getagd
1/ 15