Logo Vakantiehuisjes.nl Logo Vakantiehuisjes.nl
  • Actueel & betrouwbaar
  • Direct boeken
  • Lage prijzen

Résidence Val D'isere Village

|
Bekijk op kaart
Résidence Val D'isere Village
Résidence Val D'isere Village
Résidence Val D'isere Village
+ 12 foto's
Résidence Val D'isere Village
€306,86 v.a. prijs per nacht

De laagste prijsgarantie!

Heb je een vraag over dit vakantiehuis?

Neem contact met ons op

  • Afwasmachine
  • Verwarming
  • Tv
  • Parkeerplaats
  • Appartement
  • Appartementencomplex
  • Aan de skipiste
Alle voorzieningen

Omschrijving

Comfortabel appartement aan de voet van de piste, overdekte parkeerplaats

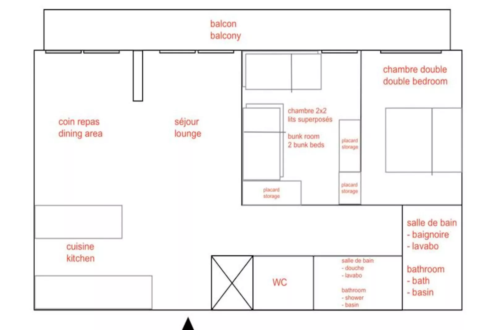
In het hart van het prestigieuze Val d'Isère Village biedt dit charmante appartement in de Alpen een ongeëvenaarde mix van comfort, gemak en traditionele Savoyaardse charme. Gelegen op de derde verdieping van residentie Uranus, nodigt dit op het westen gelegen toevluchtsoord u uit om vanaf uw eigen balkon te genieten van de gouden tinten van de ondergaande zon, terwijl de besneeuwde toppen van de Franse Alpen een adembenemend decor vormen. Of u nu komt om te skiën, te winkelen of gewoon te ontspannen, deze accommodatie belooft een onvergetelijke bergvakantie. Het appartement is geschikt voor maximaal zes personen en beschikt over twee gezellige slaapkamers, waarvan één met een comfortabel tweepersoonsbed en de andere met twee stapelbedden, perfect voor gezinnen of groepen vrienden. De woonkamer, uitgerust met een flatscreen-tv en dvd-speler, is de ideale plek om te ontspannen na een dag op de piste. De volledig uitgeruste keuken, compleet met inductiekookplaat, oven, vaatwasser en Nespresso-apparaat, zorgt ervoor dat u gemakkelijk stevige maaltijden kunt bereiden. Twee moderne badkamers, één met een bad en de andere met een douche, zorgen voor extra gemak, terwijl het inbegrepen beddengoed, handdoeken en de schoonmaakservice halverwege het verblijf zorgen voor een zorgeloos verblijf. \n\nStap naar buiten en u bevindt zich op slechts enkele meters afstand van de skipistes, de Franse skischool en diverse winkels, restaurants en après-skigelegenheden. Geniet van een heerlijke maaltijd bij La Corniche of ontspan met een drankje in de levendige Coin des Amis of Le Doudoune Club. Voor skiverhuur profiteert u van exclusieve kortingen in de INTERSPORT Front de Neige MATTIS winkel. Met een overdekte parkeerplaats op slechts 50 meter van de residentie en een skilocker voor uw uitrusting, is aan elk detail gedacht om uw verblijf zo soepel mogelijk te laten verlopen. \n\nOf u nu op zoek bent naar spannende dagen op de piste of gezellige avonden bij de open haard, dit appartement in Val d'Isère Village biedt de perfecte uitvalsbasis voor uw alpine avontuur. Ervaar de magie van de Franse Alpen en creëer herinneringen die een leven lang meegaan.

Belangrijke informatie
Type vakantiehuisje Appartement
Over het vakantiehuisje
  • Gelegen inLa Daille
  • Aankomst vanaf 15:00 tot 20:00
  • Vertrektijd 10:00

Voorzieningen

Dit maakt jouw verblijf onvergetelijk

Faciliteiten
Voorzieningen
  • Afwasmachine
  • Oven / magnetron
  • Parkeerplaats
  • Tv
  • Verwarming

Op de kaart

Alle informatie die je nodig hebt voor de juiste beslissing!

Het weer
Weather Icon 0°C Zonnig
Minimaal -13°C
Maximaal 0°C
Komende dagen
  • di. 17 /-11° 87%
  • wo. 18 /-14° 100%
  • do. 19 -1°/-15° 0%
  • vr. 20 /-13° 0%
  • za. 21 -1°/-11° 100%

Het klimaat in La Daille

Het weer het gehele jaar

Maand Temperatuur (°C) Luchtvochtigheid (%) Neerslagsom (mm)
Januari /-8° 80% 85 mm
Februari /-8° 77% 70 mm
Maart /-5° 75% 75 mm
April /-2° 72% 70 mm
Mei 13°/2° 71% 80 mm
Juni 18°/6° 72% 80 mm
Juli 21°/8° 68% 65 mm
Augustus 21°/8° 67% 70 mm
September 17°/5° 71% 80 mm
Oktober 12°/1° 75% 95 mm
November /-3° 78% 90 mm
December /-7° 80% 85 mm

Veelgestelde vragen

Antwoorden op de meest gestelde vragen over deze accommodatie

Mag ik mijn huisdieren meenemen naar Résidence Val D'isere Village?
Nee, het is niet toegestaan om huisdieren mee te nemen naar Résidence Val D'isere Village
Is er wifi beschikbaar bij Résidence Val D'isere Village?
Nee, er is geen aanwezig op deze accommodatie.
Is er airco aanwezig bij Résidence Val D'isere Village?
Nee, deze er is op deze accommodatie geen airco aanwezig.
Wat zijn de in- en uitchecktijden voor Résidence Val D'isere Village?
Inchecken kan vanaf 15:00 en uitchecken tot 10:00.
Heeft Résidence Val D'isere Village een bad?
Nee, Résidence Val D'isere Village heeft geen bad.
Kan ik mijn auto parkeren bij Résidence Val D'isere Village?
Ja, Résidence Val D'isere Village beschikt over een eigen parkeerpaats.
Kan ik zwemmen bij Résidence Val D'isere Village?
Nee, er zijn geen zwemfaciliteiten Résidence Val D'isere Village aanwezig.

Andere accommodaties in de buurt

Misschien vind je dit ook leuk

Direct te boeken
Résidence Val D'isere Village
Résidence Val D'isere Village
Afwasmachine Wasmachine Oven / magnetron Tv
Direct te boeken
Résidence Val D'isere Village
Résidence Val D'isere Village
Afwasmachine Oven / magnetron Tv Parkeerplaats
Direct te boeken
Résidence Val D'isere Village
Résidence Val D'isere Village
Afwasmachine Wasmachine Oven / magnetron Tv
Direct te boeken
Résidence Val D'isere Village
Résidence Val D'isere Village
Afwasmachine Verwarming Tv Parkeerplaats
Direct te boeken
Résidence Val D'isere Village
Résidence Val D'isere Village
Afwasmachine Oven / magnetron Tv Appartement
Direct te boeken
Résidence Val D'isere Village
Résidence Val D'isere Village
Afwasmachine Wasmachine Oven / magnetron Tv
Direct te boeken
Résidence Val D'isere Village
Résidence Val D'isere Village
Afwasmachine Oven / magnetron Tv Appartement
Direct te boeken
Résidence Val D'isere Village
Résidence Val D'isere Village
Afwasmachine Oven / magnetron Tv Parkeerplaats
Plaatsen in de buurt
Résidence Val D'isere Village

Frankrijk - Auvergne-Rhône-Alpes - Savoie - La Daille

Fotoboek
Filteren:
badkamers
Résidence Val D'isere Village - Niet-getagd
Résidence Val D'isere Village - Niet-getagd
Résidence Val D'isere Village - Niet-getagd
Résidence Val D'isere Village - Niet-getagd
Résidence Val D'isere Village - Niet-getagd
Résidence Val D'isere Village - Niet-getagd
Résidence Val D'isere Village - Niet-getagd
Résidence Val D'isere Village - Niet-getagd
Résidence Val D'isere Village - Niet-getagd
Résidence Val D'isere Village - Niet-getagd
Résidence Val D'isere Village - Niet-getagd
Résidence Val D'isere Village - Niet-getagd
Résidence Val D'isere Village - Niet-getagd
Résidence Val D'isere Village - Niet-getagd
Résidence Val D'isere Village - Niet-getagd
1/ 15