Logo Vakantiehuisjes.nl Logo Vakantiehuisjes.nl
  • Actueel & betrouwbaar
  • Direct boeken
  • Lage prijzen

4 Personen vakantie huis in Hagby

|
Bekijk op kaart
4 Personen vakantie huis in Hagby
4 Personen vakantie huis in Hagby
4 Personen vakantie huis in Hagby
+ 33 foto's
4 Personen vakantie huis in Hagby
€86,62 v.a. prijs per nacht

De laagste prijsgarantie!

Heb je een vraag over dit vakantiehuis?

Neem contact met ons op

  • Koelkast
  • Verwarming
  • Tv
  • Douche
  • Vakantiehuis
Alle voorzieningen

Omschrijving

4 Personen vakantie huis in Hagby

Buchen Sie dieses gemütliche Ferienhäuschen mit großem Garten in Igelösa, nur 600 m vom Meer entfernt. Hier sind Sie in der Nähe fantastischer Badeufer mit schönen Stränden. Sie haben nur 3 km bis zum schönen Ekenäsbadet. Dort gibt es auch eine holzbefeuerte Sauna, die Sie mieten können, einen Grillplatz und einen schönen Yachthafen. Sie wohnen zudem nur 6 km vom wunderbaren Vita Sand mit seinem feinen Sandstrand, Straßenimbissen und Eisdielen. Es gibt eine große Auswahl an Spielplätzen mit Seilbahn und Trampolinen für die Kinder. Sie können dem Möreleden am Wasser entlang folgen, um zu beiden Badeplätzen zu gelangen. Es gibt viele Wanderwege in dem schönen Waldgebiet. Direkt am Meer gab es früher ein Kurzentrum mit einem großen Brunnhotel. Heute sind die schöne Meeresumgebung und die Quelle erhalten geblieben. Beachten Sie bitte, dass dieses Haus an einer Straße liegt, die manchmal stark befahren sein kann. Wenn Sie mit dem Bus nach Kalmar fahren möchten, ist die Bushaltestelle dort 200 m entfernt und dann hält der Bus direkt vor dem Haus (Igelösa Gård). Das Haus hat ein schönes Wohnzimmer mit Sofagruppe. Die Küche ist geräumig und hat einen schönen Essbereich. Es gibt ein neu gebautes Schlafzimmer mit zwei Betten. Von der Küche führt eine steile Leiter hinauf zum Schlafboden, wo sich direkt unter dem Dachfirst vier Einzelbetten befinden. Die Öffnung zur Küche kann auf Wunsch geschlossen werden. Achten Sie bei geöffneter Tür auf Kinder. Sie haben ein Badezimmer mit Waschbecken, Toilette und Dusche. Max. 5 Pers. Im Garten gibt es Gartenmöbel und einen Grill. Das Verbrennen im Kamin oder im Holzofen ist nicht gestattet! Das Aufladen von Elektroautos ist nicht gestattet. Einige Teile des Rasens werden, nach dem Anbau des neu gebauten Schlafzimmers, möglicherweise erst ab Sommer 2025 kommplett bewachsen sein. Sie wohnen hier in der Nähe guter Restaurants. Stufvenäs mit feinem Essen und Spa ist 8 km entfernt. Die Villa Famiglia, wo Speisen in mediterran inspirierter Umgebung serviert werden, liegt 8,5 km entfernt. Kalmar, Öland, Kristianopel und Glasriket liegen in der Nähe, falls Sie Tagesausflüge unternehmen möchten.

Belangrijke informatie
Type vakantiehuisje Vakantiehuis
Over het vakantiehuisje
  • Gelegen inHagby
  • Aankomst vanaf 16:00 tot 18:00
  • Vertrektijd 10:00

Voorzieningen

Dit maakt jouw verblijf onvergetelijk

Faciliteiten
Voorzieningen
  • Douche
  • Koelkast
  • Oven / magnetron
  • Tv
  • Verwarming

Op de kaart

Alle informatie die je nodig hebt voor de juiste beslissing!

Het weer
Weather Icon 4°C Helder
Minimaal 4°C
Maximaal 11°C
Komende dagen
  • za. 09 11°/5° 0%
  • zo. 10 11°/5° 0%
  • ma. 11 /5° 100%
  • di. 12 10°/6° 100%
  • wo. 13 14°/6° 100%

Het klimaat in Hagbytorp

Het weer het gehele jaar

Maand Temperatuur (°C) Luchtvochtigheid (%) Neerslagsom (mm)
Januari /-4° 90% 39 mm
Februari /-5° 87% 28 mm
Maart /-2° 80% 29 mm
April 11°/1° 69% 28 mm
Mei 17°/6° 65% 35 mm
Juni 21°/10° 68% 60 mm
Juli 23°/13° 71% 74 mm
Augustus 22°/12° 74% 66 mm
September 17°/8° 81% 53 mm
Oktober 10°/4° 87% 55 mm
November /0° 92% 48 mm
December /-3° 91% 48 mm

Veelgestelde vragen

Antwoorden op de meest gestelde vragen over deze accommodatie

Mag ik mijn huisdieren meenemen naar 4 Personen vakantie huis in Hagby?
Nee, het is niet toegestaan om huisdieren mee te nemen naar 4 Personen vakantie huis in Hagby
Is er wifi beschikbaar bij 4 Personen vakantie huis in Hagby?
Nee, er is geen aanwezig op deze accommodatie.
Is er airco aanwezig bij 4 Personen vakantie huis in Hagby?
Nee, deze er is op deze accommodatie geen airco aanwezig.
Wat zijn de in- en uitchecktijden voor 4 Personen vakantie huis in Hagby?
Inchecken kan vanaf 16:00 en uitchecken tot 10:00.
Heeft 4 Personen vakantie huis in Hagby een bad?
Nee, 4 Personen vakantie huis in Hagby heeft geen bad.
Kan ik mijn auto parkeren bij 4 Personen vakantie huis in Hagby?
Nee, het is niet mogelijk om je auto op het terrein van de accommodatie te parkeren.
Kan ik zwemmen bij 4 Personen vakantie huis in Hagby?
Nee, er zijn geen zwemfaciliteiten 4 Personen vakantie huis in Hagby aanwezig.

Andere accommodaties in de buurt

Misschien vind je dit ook leuk

Direct te boeken
7 persoons vakantie huis in Hagby-By Traum
7 persoons vakantie huis in Hagby-By Traum
Vrijstaand Wifi Koelkast Vriezer
Direct te boeken
5 persoons vakantie huis in HALTORP-By Traum
5 persoons vakantie huis in HALTORP-By Traum
Vrijstaand Koelkast Vriezer Oven / magnetron
Direct te boeken
4 sterren vakantie huis in HALTORP
4 sterren vakantie huis in HALTORP
Koelkast Tuin Wasmachine Vriezer
Direct te boeken
10 persoons vakantie huis in Mörbylånga-By Traum
Direct te boeken
4 persoons vakantie huis in SÖDERÅKRA-By Traum
Direct te boeken
5 persoons vakantie huis in SÖDERÅKRA-By Traum
Direct te boeken
Vakantiehuis vlakbij het strand van Morbylanga
Direct te boeken
Charmant huisje bij zee en wandelpaden
Charmant huisje bij zee en wandelpaden
Koelkast Vriezer Verwarming Douche
Plaatsen in de buurt
4 Personen vakantie huis in Hagby

Zweden - Kalmar - Hagby

Fotoboek
Filteren:
badkamers
4 Personen vakantie huis in Hagby - Buitenlucht
4 Personen vakantie huis in Hagby - Buitenlucht
4 Personen vakantie huis in Hagby - Buitenlucht
4 Personen vakantie huis in Hagby - Buitenlucht
4 Personen vakantie huis in Hagby - Buitenlucht
4 Personen vakantie huis in Hagby - Buitenlucht
4 Personen vakantie huis in Hagby - Buitenlucht
4 Personen vakantie huis in Hagby - Niet-getagd
4 Personen vakantie huis in Hagby - Niet-getagd
4 Personen vakantie huis in Hagby - Niet-getagd
4 Personen vakantie huis in Hagby - Binnen
4 Personen vakantie huis in Hagby - Binnen
4 Personen vakantie huis in Hagby - Binnen
4 Personen vakantie huis in Hagby - Binnen
4 Personen vakantie huis in Hagby - Binnen
4 Personen vakantie huis in Hagby - Binnen
4 Personen vakantie huis in Hagby - Binnen
4 Personen vakantie huis in Hagby - Binnen
4 Personen vakantie huis in Hagby - Binnen
4 Personen vakantie huis in Hagby - Binnen
4 Personen vakantie huis in Hagby - Binnen
4 Personen vakantie huis in Hagby - Binnen
4 Personen vakantie huis in Hagby - Binnen
4 Personen vakantie huis in Hagby - Binnen
4 Personen vakantie huis in Hagby - Binnen
4 Personen vakantie huis in Hagby - Binnen
4 Personen vakantie huis in Hagby - Binnen
4 Personen vakantie huis in Hagby - Niet-getagd
4 Personen vakantie huis in Hagby - Niet-getagd
4 Personen vakantie huis in Hagby - Niet-getagd
4 Personen vakantie huis in Hagby - Niet-getagd
4 Personen vakantie huis in Hagby - Niet-getagd
4 Personen vakantie huis in Hagby - Niet-getagd
4 Personen vakantie huis in Hagby - Niet-getagd
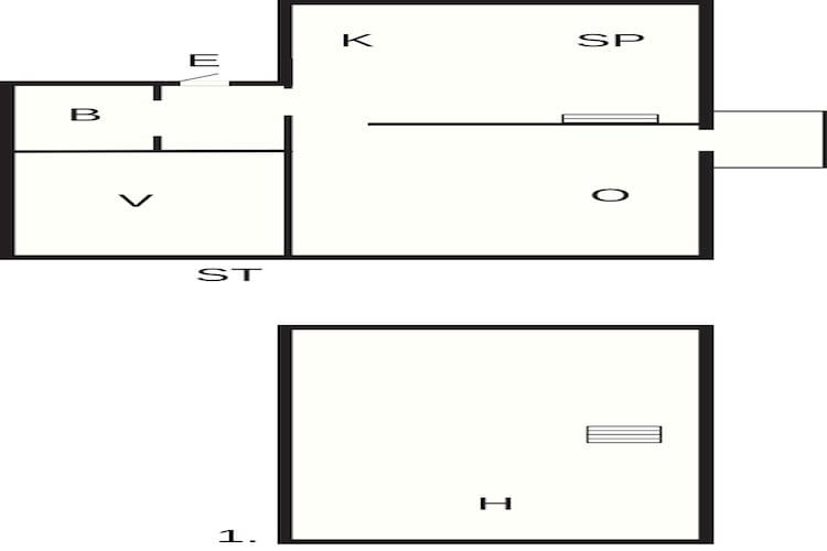
4 Personen vakantie huis in Hagby - Plattegrond
4 Personen vakantie huis in Hagby - Plattegrond
1/ 36