Logo Vakantiehuisjes.nl Logo Vakantiehuisjes.nl
  • Actueel & betrouwbaar
  • Direct boeken
  • Lage prijzen

4 persoons vakantie huis in TJÖRNARP

|
Bekijk op kaart
4 persoons vakantie huis in TJÖRNARP
4 persoons vakantie huis in TJÖRNARP
4 persoons vakantie huis in TJÖRNARP
+ 17 foto's
4 persoons vakantie huis in TJÖRNARP
€75,79 v.a. prijs per nacht

De laagste prijsgarantie!

Heb je een vraag over dit vakantiehuis?

Neem contact met ons op

  • Wasmachine
  • Oven / magnetron
  • Douche
  • Openhaard
  • Wifi
  • Vakantiehuis
  • Barbecue
Alle voorzieningen

Omschrijving

4 persoons vakantie huis in TJÖRNARP

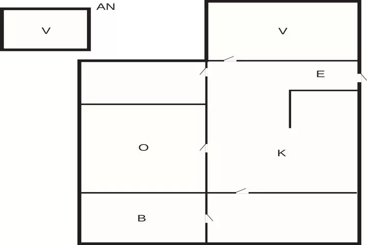
In der malerischen Umgebung mitten in Skåne, zwischen den Orten Höör und Hässleholm, liegt gleich außerhalb des Dorfes Tjörnarps Kyrkby dieses gemütliche Ferienhaus. Ein schönes Reiseziel für Naturliebhaber, mit Wald und Vogelgezwitscher ganz in der Nähe, auch wenn die wenig befahrene Dorfstraße direkt vor dem Haus vorbeiführt. Das Ferienhaus befindet sich auf einem hügeligen Grundstück mit guten Parkmöglichkeiten und liegt zusammen mit mehreren anderen kleinen Gebäuden, die zum Ferienhaus gehören, wie z.B. Annex, Schuppen etc. Über die verglaste Terrasse betreten Sie das gut aufgeteilte Ferienhaus mit einem Schlafzimmer mit Doppelbett, einer guten Arbeitsküche, einem Badezimmer mit Waschmaschine und Trockner. Das Wohnzimmer verfügt über eine kleine Essecke, ein Sofa, einen Fernseher und einen gemütlichen Holzofen. Im Annex nebenan auf dem Grundstück befindet sich ein weiteres, einfacheres Schlafzimmer mit zwei Betten und angrenzendem Abstellraum. Draußen gibt es eine Terrasse mit bequemen Gartenmöbeln und Hängematte. Die etwas abgeschirmtere Lage des Annexes bietet Platz für Sonnenbäder in den Liegestühlen. Im Sommer gibt es rund um das gesamte Naturgrundstück viele üppige Blumenbeete, Sträucher und Büsche. Eine passende Unterkunft für eine kleine Familie oder ein Paar, das eine der schönsten und friedlichsten Umgebungen von Skåne genießen möchte! Der Eigentümer verleiht vor Ort auch Fahrräder; je zwei Herrren- und Damenräder für Ausflüge in die grüne Umgebung. Ein paar Kilometer entfernt gibt es eine Badestelle am See Tjörnarpssjön, wo Sie ein Boot mieten und angeln können. Für Wanderer liegt der Skåneleden-Pfad in der Nähe und mehrere andere schöne Wandergebiete befinden sich in der Umgebung. Etwas mehr als 15 Kilometer entfernt liegt der Tierpark Skånes Djurpark, beliebt bei der ganzen Familie! Nördlich in gleicher Entfernung finden Sie das wunderschöne Schloss Hovdala mit Restaurant, Café und schönem Schlosspark. Gourmet-Pizzen werden freitags und samstags im nahe gelegenen Lantkaféet in Tjörnarp gebacken.

Belangrijke informatie
Populaire filters Wifi
Type vakantiehuisje Vakantiehuis
Over het vakantiehuisje
  • Gelegen inTjörnarp
  • Aankomst vanaf 00:00 tot 00:00
  • Vertrektijd 00:00

Voorzieningen

Dit maakt jouw verblijf onvergetelijk

Faciliteiten
Voorzieningen
  • Barbecue
  • Douche
  • Koelkast
  • Openhaard
  • Oven / magnetron
  • Tv
  • Verwarming
  • Vriezer
  • Wasmachine
  • Wifi

Op de kaart

Alle informatie die je nodig hebt voor de juiste beslissing!

Het weer
Weather Icon 11°C Lichte motregen
Minimaal 9°C
Maximaal 14°C
Komende dagen
  • ma. 06 16°/9° 100%
  • di. 07 16°/8° 100%
  • wo. 08 15°/10° 100%
  • do. 09 15°/9° 86%
  • vr. 10 14°/12° 81%

Veelgestelde vragen

Antwoorden op de meest gestelde vragen over deze accommodatie

Mag ik mijn huisdieren meenemen naar 4 persoons vakantie huis in TJÖRNARP?
Ja, je mag 2 huisdieren meenemen naar 4 persoons vakantie huis in TJÖRNARP
Is er wifi beschikbaar bij 4 persoons vakantie huis in TJÖRNARP?
Ja, deze accommodatie beschikt over wifi en wifi.
Is er airco aanwezig bij 4 persoons vakantie huis in TJÖRNARP?
Nee, deze er is op deze accommodatie geen airco aanwezig.
Wat zijn de in- en uitchecktijden voor 4 persoons vakantie huis in TJÖRNARP
Inchecken kan vanaf 00:00 en uitchecken tot 00:00.
Heeft 4 persoons vakantie huis in TJÖRNARP een bad?
Nee, 4 persoons vakantie huis in TJÖRNARP heeft geen bad.
Kan ik mijn auto parkeren bij 4 persoons vakantie huis in TJÖRNARP?
Nee, het is niet mogelijk om je auto op het terrein van de accommodatie te parkeren.
Kan ik zwemmen bij 4 persoons vakantie huis in TJÖRNARP?
Nee, er zijn geen zwemfaciliteiten 4 persoons vakantie huis in TJÖRNARP aanwezig.

Andere accommodaties in de buurt

Misschien vind je dit ook leuk

Direct te boeken
6 persoons vakantie huis in TJÖRNARP
6 persoons vakantie huis in TJÖRNARP
Wifi Vakantiehuis Afwasmachine Wasmachine
Direct te boeken
5 sterren vakantie huis in HÖÖR-By Traum
5 sterren vakantie huis in HÖÖR-By Traum
Afwasmachine Wasmachine Verwarming Oven / magnetron
Direct te boeken
6 Personen vakantie huis in HÖRBY
6 Personen vakantie huis in HÖRBY
Afwasmachine Wasmachine Verwarming Oven / magnetron
Direct te boeken
9 Personen vakantie huis in SÖSDALA
9 Personen vakantie huis in SÖSDALA
Sauna Afwasmachine Wasmachine Barbecue
Direct te boeken
9 persoons vakantie huis in Ljungbyhed-By Traum
9 persoons vakantie huis in Ljungbyhed-By Traum
Vakantiehuis Wasmachine Verwarming Oven / magnetron
Direct te boeken
2 persoons vakantie huis in TYRINGE-By Traum
2 persoons vakantie huis in TYRINGE-By Traum
Wifi Vakantiehuis Oven / magnetron Verwarming
Direct te boeken
4 sterren vakantie huis in TYRINGE
4 sterren vakantie huis in TYRINGE
Afwasmachine Wasmachine Verwarming Oven / magnetron
Direct te boeken
4 persoons vakantie huis in Ljungbyhed-By Traum
4 persoons vakantie huis in Ljungbyhed-By Traum
Wifi Vakantiehuis Afwasmachine Oven / magnetron
Plaatsen in de buurt
4 persoons vakantie huis in TJÖRNARP

Zweden - Skåne - Tjörnarp

Fotoboek
Filteren:
badkamers
4 persoons vakantie huis in TJÖRNARP-Buitenlucht
4 persoons vakantie huis in TJÖRNARP-Buitenlucht
4 persoons vakantie huis in TJÖRNARP-Buitenlucht
4 persoons vakantie huis in TJÖRNARP-Buitenlucht
4 persoons vakantie huis in TJÖRNARP-Buitenlucht
4 persoons vakantie huis in TJÖRNARP-Buitenlucht
4 persoons vakantie huis in TJÖRNARP-Buitenlucht
4 persoons vakantie huis in TJÖRNARP-Buitenlucht
4 persoons vakantie huis in TJÖRNARP-Buitenlucht
4 persoons vakantie huis in TJÖRNARP-Binnen
4 persoons vakantie huis in TJÖRNARP-Buitenlucht
4 persoons vakantie huis in TJÖRNARP-Binnen
4 persoons vakantie huis in TJÖRNARP-Binnen
4 persoons vakantie huis in TJÖRNARP-Binnen
4 persoons vakantie huis in TJÖRNARP-Binnen
4 persoons vakantie huis in TJÖRNARP-Binnen
4 persoons vakantie huis in TJÖRNARP-Binnen
4 persoons vakantie huis in TJÖRNARP-Binnen
4 persoons vakantie huis in TJÖRNARP-Binnen
4 persoons vakantie huis in TJÖRNARP-Plattegrond
1/ 20