Logo Vakantiehuisjes.nl Logo Vakantiehuisjes.nl
  • Actueel & betrouwbaar
  • Direct boeken
  • Lage prijzen

4 sterren vakantie huis in SÖLVESBORG-By Traum

|
Bekijk op kaart
4 sterren vakantie huis in SÖLVESBORG-By Traum
4 sterren vakantie huis in SÖLVESBORG-By Traum
4 sterren vakantie huis in SÖLVESBORG-By Traum
+ 24 foto's
4 sterren vakantie huis in SÖLVESBORG-By Traum
€0,00 v.a. prijs per nacht

De laagste prijsgarantie!

Heb je een vraag over dit vakantiehuis?

Neem contact met ons op

  • Wasmachine
  • Koelkast
  • Verwarming
  • Douche
  • Wifi
  • Vakantiehuis
  • Kinderstoel
Alle voorzieningen

Omschrijving

4 sterren vakantie huis in SÖLVESBORG-By Traum

Willkommen auf dem Lande, auf einem Bauernhof mit Tieren und mit der Natur als nächstem Nachbarn! Hier gibt es viel zu entdecken, aber gleichzeitig viel Ruhe in wunderschöner Umgebung. Sie wohnen zudem in der Nähe von weißen, langen Sandstränden, einem der besten Golfplätze Schwedens und unweit einer großen Auswahl an Musik- und Kulturveranstaltungen in der Region Listerlandet. Diese Unterkunft befindet sich in der obersten Etage eines Flügels dieses Masthofes. Innen offener Küchen-/Wohnbereich sowie ein Bad und ein Schlafzimmer. Außen schöner Balkon mit Morgensonne am Eingang. Im großen Familienzimmer sorgen die freiliegenden Deckenbalken zusammen mit Oberlichtern für viel Licht und wohnliches Ambiente. Die Mahlzeiten können Sie je nach Wetterlage am Esstisch oder draußen auf dem Balkon zu sich nehmen. Im Küchenbereich, mit der Möglichkeit zur Selbstversorgung, stehen eine Mikrowelle mit Grillfunktion und ein Kochfeld ohne Backofen zur Verfügung. Zudem Grill auf dem Balkon. Auf dem großzügigen Sofa im Wohnbereich findet jeder Platz vor der großen Filmleinwand mit Beamer, den man per Chromecast-Anbindung nutzen kann. Am anderen Ende dieses großen Zimmers stehen zwei Schlafplätze in einer abgeschiedenen Ecke bereit. Im separaten Schlafzimmer mit Fenster zum Hof stehen ein Doppelbett, ein Juniorbett und ein Kinderbett für den kleinsten Gast zur Verfügung. Ein Durchgang zum Schlafzimmer führt über eine Treppe mit Babygatter hinunter zum verschlossenen Teil des Hauses, der Privatunterkunft des Eigentümers. Das helle Badezimmer mit Dachschräge neben dem Schlafzimmer verfügt über eine Dusche und eine Waschmaschine. Es besteht vor Ort die Möglichkeit, die Schafe auf dem Hof zu streicheln, einen Ausritt oder eine Tennisstunde zu buchen. Zudem können Sie im nahegelegenen Höga rör am Mörby-Hügel mit weitem Ausblick antike Überreste besichtigen, die zu Fuß erreichbar sind. Den Strand erreichen Sie größtenteils über eine autofreie Straße oder Sie leihen sich auf dem Bauernhof ein Fahrrad. Für Strandbesuche oder Golfspiele kann auch ein motorisierter Wagen gemietet werden, der Platz für 2 Personen bietet. Empfehlenswert ist die Fahrt über eine Fußgänger- und Fahrradbrücke in die Kleinstadtidylle Sölvesborg mit ihrem vielfältigen Angebot an Dienstleistungen, Einkaufsmöglichkeiten und ganzjährig geöffneten Gastronomiebetrieben. In den Hofläden der Umgebung können Sie Fleisch und Gemüse zum Selbstkochen kaufen, wenn Sie nicht eine der im Sommer geöffneten Optionen im Meeresschwimmbad von Sandviken oder im Restaurant des Golfclubs besuchen möchten. Saunanutzung, Fahrrad- und „Wagen“-verleih sowie die zuvor genannten Aktivitäten können direkt beim Eigentümer und vorzugsweise im Voraus gebucht werden. Es gibt große, eingezäunte Bereiche zum Verweilen und Spielen, aber der Bauernhof ist dennoch ein Arbeitsplatz mit Traktoren und Werkzeugen, was bedeutet, dass Kinder und Haustiere beaufsichtigt werden müssen.

Belangrijke informatie
Populaire filters Wifi
Type vakantiehuisje Vakantiehuis
Over het vakantiehuisje
  • Gelegen inSandviken
  • Aankomst vanaf 16:00 tot 18:00
  • Vertrektijd 10:00

Voorzieningen

Dit maakt jouw verblijf onvergetelijk

Faciliteiten
Voorzieningen
  • Douche
  • Koelkast
  • Oven / magnetron
  • Verwarming
  • Wasmachine
  • Wifi

Op de kaart

Alle informatie die je nodig hebt voor de juiste beslissing!

Het weer
Weather Icon 3°C Gedeeltelijk bewolkt
Minimaal 3°C
Maximaal 5°C
Komende dagen
  • ma. 22 /3° 0%
  • di. 23 /1° 88%
  • wo. 24 /-2° 0%
  • do. 25 /-2° 0%
  • vr. 26 /-1° 0%

Het klimaat in Sandviken

Het weer het gehele jaar

Maand Temperatuur (°C) Luchtvochtigheid (%) Neerslagsom (mm)
Januari -1°/-7° 92% 42 mm
Februari /-8° 88% 32 mm
Maart /-5° 82% 30 mm
April 10°/-1° 72% 32 mm
Mei 17°/4° 65% 37 mm
Juni 21°/9° 67% 53 mm
Juli 23°/12° 72% 74 mm
Augustus 21°/11° 76% 70 mm
September 16°/7° 82% 52 mm
Oktober /2° 88% 55 mm
November /-2° 92% 48 mm
December /-6° 93% 45 mm

Veelgestelde vragen

Antwoorden op de meest gestelde vragen over deze accommodatie

Mag ik mijn huisdieren meenemen naar 4 sterren vakantie huis in SÖLVESBORG-By Traum?
Ja, je mag 2 huisdieren meenemen naar 4 sterren vakantie huis in SÖLVESBORG-By Traum
Is er wifi beschikbaar bij 4 sterren vakantie huis in SÖLVESBORG-By Traum?
Ja, deze accommodatie beschikt over wifi en wifi.
Is er airco aanwezig bij 4 sterren vakantie huis in SÖLVESBORG-By Traum?
Nee, deze er is op deze accommodatie geen airco aanwezig.
Wat zijn de in- en uitchecktijden voor 4 sterren vakantie huis in SÖLVESBORG-By Traum
Inchecken kan vanaf 16:00 en uitchecken tot 10:00.
Heeft 4 sterren vakantie huis in SÖLVESBORG-By Traum een bad?
Nee, 4 sterren vakantie huis in SÖLVESBORG-By Traum heeft geen bad.
Kan ik mijn auto parkeren bij 4 sterren vakantie huis in SÖLVESBORG-By Traum?
Nee, het is niet mogelijk om je auto op het terrein van de accommodatie te parkeren.
Kan ik zwemmen bij 4 sterren vakantie huis in SÖLVESBORG-By Traum?
Nee, er zijn geen zwemfaciliteiten 4 sterren vakantie huis in SÖLVESBORG-By Traum aanwezig.

Andere accommodaties in de buurt

Misschien vind je dit ook leuk

Direct te boeken
Kustwoning in buurt van het strand van Sandviken
Direct te boeken
5 persoons vakantie huis in SÖLVESBORG
5 persoons vakantie huis in SÖLVESBORG
Koelkast Oven / magnetron Tv Douche
Direct te boeken
4 sterren vakantie huis in SÖLVESBORG
4 sterren vakantie huis in SÖLVESBORG
Koelkast Tuin Vriezer Oven / magnetron
Direct te boeken
4 sterren vakantie huis in SÖLVESBORG
4 sterren vakantie huis in SÖLVESBORG
Sauna Bubbelbad / Hot tub Koelkast Tuin
Direct te boeken
4 sterren vakantie huis in SÖLVESBORG-By Traum
4 sterren vakantie huis in SÖLVESBORG-By Traum
Koelkast Vriezer Oven / magnetron Wifi
Direct te boeken
Västra Näs
Västra Näs
Barbecue Oven / magnetron Tv Douche
Direct te boeken
4 sterren vakantie huis in SÖLVESBORG
4 sterren vakantie huis in SÖLVESBORG
Koelkast Wasmachine Vriezer Oven / magnetron
Direct te boeken
6 persoons vakantie huis in SÖLVESBORG-By Traum
6 persoons vakantie huis in SÖLVESBORG-By Traum
Vrijstaand Koelkast Tuin Oven / magnetron
Plaatsen in de buurt
4 sterren vakantie huis in SÖLVESBORG-By Traum

Zweden - Blekinge - Sandviken

Fotoboek
Filteren:
badkamers
4 sterren vakantie huis in SÖLVESBORG-By Traum-Buitenlucht
4 sterren vakantie huis in SÖLVESBORG-By Traum-Buitenlucht
4 sterren vakantie huis in SÖLVESBORG-By Traum-Buitenlucht
4 sterren vakantie huis in SÖLVESBORG-By Traum-Buitenlucht
4 sterren vakantie huis in SÖLVESBORG-By Traum-Buitenlucht
4 sterren vakantie huis in SÖLVESBORG-By Traum-Buitenlucht
4 sterren vakantie huis in SÖLVESBORG-By Traum-Buitenlucht
4 sterren vakantie huis in SÖLVESBORG-By Traum-Buitenlucht
4 sterren vakantie huis in SÖLVESBORG-By Traum-Buitenlucht
4 sterren vakantie huis in SÖLVESBORG-By Traum-Buitenlucht
4 sterren vakantie huis in SÖLVESBORG-By Traum-Buitenlucht
4 sterren vakantie huis in SÖLVESBORG-By Traum-Buitenlucht
4 sterren vakantie huis in SÖLVESBORG-By Traum-Buitenlucht
4 sterren vakantie huis in SÖLVESBORG-By Traum-Buitenlucht
4 sterren vakantie huis in SÖLVESBORG-By Traum-Buitenlucht
4 sterren vakantie huis in SÖLVESBORG-By Traum-Buitenlucht
4 sterren vakantie huis in SÖLVESBORG-By Traum-Binnen
4 sterren vakantie huis in SÖLVESBORG-By Traum-Binnen
4 sterren vakantie huis in SÖLVESBORG-By Traum-Binnen
4 sterren vakantie huis in SÖLVESBORG-By Traum-Binnen
4 sterren vakantie huis in SÖLVESBORG-By Traum-Binnen
4 sterren vakantie huis in SÖLVESBORG-By Traum-Binnen
4 sterren vakantie huis in SÖLVESBORG-By Traum-Binnen
4 sterren vakantie huis in SÖLVESBORG-By Traum-Binnen
4 sterren vakantie huis in SÖLVESBORG-By Traum-Binnen
4 sterren vakantie huis in SÖLVESBORG-By Traum-Binnen
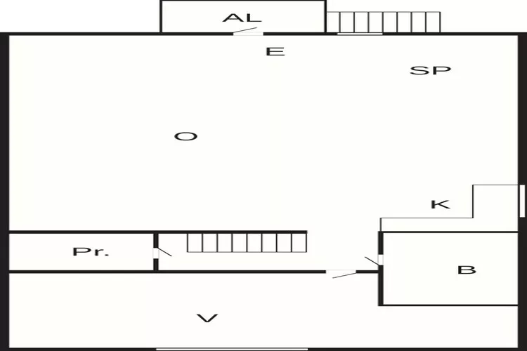
4 sterren vakantie huis in SÖLVESBORG-By Traum-Plattegrond
1/ 27